![]() | Bejelentkezés |





Két lehetőség áll fenn, mikor ez a kérdés megfogalmazódik bennünk.


Van kérdése?
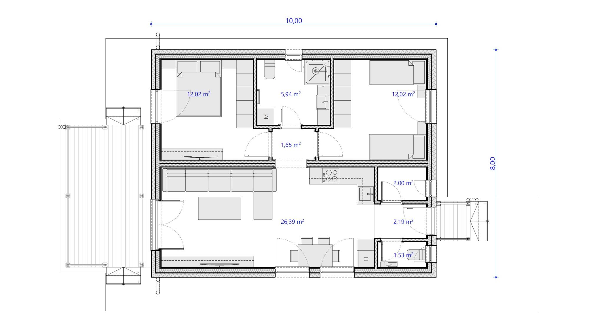
Modern, 63 m²-es Modulház – Az Ön Otthona, Kompromisszumok Nélkül
Tér, kényelem és fenntarthatóság egy helyen! Fedezze fel a Gaia Szíve Kft. kétmodulos, könnyűszerkezetes otthonát, amely ideális választás fiatal pároknak, kis családoknak vagy egy modern nyaralónak Kecskemét környékén.
Ez a 63 m²-es, 2 hálószoba + nappalis otthon a bizonyíték, hogy nem kell kompromisszumot kötnie a minőség, a tér és a gyorsaság között. A modern, előregyártott technológiának köszönhetően Ön heteken, nem pedig éveken belül birtokba veheti új otthonát, elkerülve a hagyományos építkezésekkel járó stresszt és bizonytalanságot.
Főbb Jellemzők – Minden, Amire Szüksége Van
Hasznos Alapterület: 63 m², intelligensen megtervezve
Elrendezés: Tágas, amerikai konyhás nappali + 2 külön nyíló hálószoba
Konyha: Teljesen felszerelt, gépesített konyha modern bútorzattal
Fürdőszoba: Komplett, funkcionális fürdőszoba
Fűtés: Korszerű, energiatakarékos rendszer a minimális rezsiköltségért
Fenntarthatóság: Környezettudatos és időtálló anyagok használata
Ez a ház nemcsak esztétikailag vonzó, hanem a pénztárcáját is kíméli. A modern technológia és a kiváló szigetelés garantálja a hosszú távú megbízhatóságot és a rendkívül alacsony fenntartási költségeket.
Finanszírozási Lehetőségek és Állami Támogatások (2025)
Új otthona megvalósításához most kedvező pénzügyi lehetőségeket is igénybe vehet! Ez a modell méretével és energetikai besorolásával kiválóan megfelel a jelenleg is elérhető állami támogatások feltételeinek.
CSOK Plusz: Tájékozódjon a legújabb, kedvezményes, akár kamatmentes hitelkonstrukcióról, melyet új otthon építésére igényelhetnek a gyermekes vagy gyermeket vállaló családok.
5%-os ÁFA: Új építésű ingatlanként, egyszerű bejelentéssel a kedvezményes, 5%-os ÁFA-val számolhat.
Falusi CSOK: Amennyiben a megfelelő településen építkezik, a Falusi CSOK vissza nem térítendő támogatását is igénybe veheti.
Segítünk eligazodni a lehetőségek között, hogy a legtöbbet hozhassa ki az állami támogatásokból!
Az Első Lépés Álmai Otthona Felé
A tervezési folyamat elindításához és az engedélyeztetéshez szükséges komplett építési tervdokumentációt biztosítjuk Önnek.
Építési Tervdokumentáció Ára: 295.000 Ft + 27% ÁFA
A testreszabható tervek lehetővé teszik, hogy otthonát teljes mértékben a saját igényeihez igazítsuk.
Készen áll belevágni?
Vegye fel velünk a kapcsolatot még ma, kérjen részletes tájékoztatást a házról, a finanszírozási lehetőségekről, és tegye meg az első lépést új élete felé!
GAIA SZÍVE KFT.
📞 Telefon: +36 20 957 5288
✉️ E-mail: info@gaiaszive.hu
A terv megvásárlása előtt kérjük, egyeztessen a helyi építésügyi hatósággal az építési szabályokról a tulajdonában lévő, vagy a kiszemelt telek beépítési adottságait illetően.
A helyi építési szabályzat az építési törvényben meghatározottaknak megfelelően a település sajátosságait figyelembe véve határozza meg az építés helyi rendjét, a telkekre vonatkozó helyi építési követelményeket, jogokat, kötelezettségeket.
Az építési törvény építésjogi követelményeinek értelmében építési munkát végezni csak a helyi építési szabályzat és szabályozási terv előírásainak megfelelően lehet, így tehát igen fontos, hogy abban az egyes övezetekre vonatkozóan milyen előírásokat határoznak meg.
Kérjük, az építésügyi hatóságtól kapott információkat írásban kérje ki, szükség lesz rá a tervezéshez!
Két lehetőség áll fenn, mikor ez a kérdés megfogalmazódik bennünk.
Az egyik lehetőség az, amikor meglévő telekre szeretnénk építkezni. Ebben az esetben a telek adottságaihoz kell igazítanunk a terv kiválasztását. Ilyenkor az épület magassága mellett a hosszát, szélességét és tájolását is figyelnünk kell.
A másik lehetőség, amikor még nincs telkünk és lehetőségünk van a telket a ház adottságaihoz mérten kiválasztani. Ilyenkor könnyebb dolgunk van, csak a saját igényeinknek kell megfelelni a kiválasztott tervnek.
Mindkét esetben fel kell keresnünk a helyi építési hatóságot, mielőtt a kiválasztott tervet megvásároljuk!
A beépítést szabályozó paramétereket családi ház esetében a jogszabályok által előírtak szerint kell figyelembe venni.
A települések helyi építési szabályzat ("HÉSZ") nevű rendeletben rögzítik többek között a település építési övezeteit és az övezetekben található telkek beépítésének egyes szabályait.
A HÉSZ- ek szabályozzák: