![]() | Bejelentkezés |





Két lehetőség áll fenn, mikor ez a kérdés megfogalmazódik bennünk.


Van kérdése?
Az Otthon, Ahol a Nagycsalád Minden Tagja Jól Érzi Magát
– Ahol a közös élmények és a privát szféra tökéletes egyensúlyban vannak –
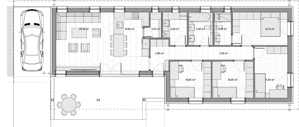
Képzelje el, hogy egy olyan otthonban él Kecskemét környékén, ahol a tágas nappaliban nevetés és gyermekkacaj tölti be a teret, miközben a család minden tagjának megvan a saját, csendes birodalma. A Gaia Szíve Kft. legújabb házterve pontosan ezt az álmot váltja valóra: egy modern, letisztult és gazdaságosan működő otthont kínál nagycsaládosok számára.
Ahogy ide költözik, Ön is azt fogja érezni:
„Végre nem kell választanom a nyüzsgő családi élet és a személyes nyugalom között – itt mindkettő megvan.”
Az Ideális Családi Otthon Három Alapelve
Ezt a házat kifejezetten a nagycsaládosok dinamikus életére terveztük, három kulcsfontosságú szempont mentén:
Tágas Közösségi Terek: A ház szíve egy nagy, egybenyitott nappali-étkező-konyha zóna, amely ideális a közös étkezésekhez, a hétvégi társasjátékokhoz és a nagy családi ünnepekhez. Elegendő teret biztosít a közös programokhoz anélkül, hogy bárki is szűkösen érezné magát.
Gondosan Tervezett Privát Zónák: Tudjuk, hogy a harmóniához elengedhetetlen a visszavonulás lehetősége. Éppen ezért minden családtagnak jut saját, csendes sarka – legyen az egy világos gyerekszoba, egy fókuszált munkavégzést segítő dolgozósarok vagy egy kényelmes olvasókuckó. A modern, letisztult stílus segít a feltöltődésben és a pihenésben.
Gazdaságos és Fenntartható Működés: Egy nagy ház fenntartása nem kell, hogy vagyonokba kerüljön. A terv a legkorszerűbb, energiatakarékos gépészeti és szigetelési megoldásokat tartalmazza, így otthona nemcsak kényelmes, de a rezsiköltségei is meglepően alacsonyak lesznek, hozzájárulva a család hosszú távú anyagi biztonságához.
Állami Támogatások Nagycsaládosoknak (2025. Szeptember)
Most különösen megéri belevágni az építkezésbe! A magyar kormány jelentős támogatásokkal segíti a nagycsaládosok otthonteremtését. Ez a házterv tökéletesen alkalmas arra, hogy maximálisan kihasználja a jelenleg elérhető lehetőségeket:
CSOK Plusz: Igényelje a kifejezetten többgyermekes családok számára elérhető, rendkívül kedvezményes, akár 15-50 millió forintos kamattámogatott hitelt új otthon építésére.
5%-os ÁFA Visszaigénylés: Új ház építése esetén a teljes, 27%-os ÁFA-tartalom helyett mindössze 5%-os ÁFA-val kell számolnia, sőt, bizonyos feltételekkel ez az 5% is visszaigényelhető.
Zöld Hitel Programok: Az energiahatékony kialakításnak köszönhetően otthona megfelelhet a kereskedelmi bankok által kínált "zöld" hitelprogramok feltételeinek is, amelyek további kamatkedvezményeket biztosíthatnak.
Segítünk eligazodni a lehetőségek útvesztőjében, hogy a lehető legtöbb támogatást vehessék igénybe!
Tervezze Meg Velünk Jövőjét!
Az első és legfontosabb lépés álmai otthona felé a professzionális tervdokumentáció. Ez a terv nem csupán alaprajzokat tartalmaz, hanem egy komplett, átgondolt koncepciót a családja jövőjéhez.
A komplett házterv ára: 490.000 Ft (+27% ÁFA)
Ez az összeg a kulcs ahhoz, hogy elindíthassa az engedélyeztetést és a támogatások igénylését.
Vegye Fel Velünk a Kapcsolatot!
Tegye meg az első lépést egy olyan otthon felé, ahol mindenki megtalálja a helyét! Keressen minket bizalommal egy személyes konzultációért.
GAIA SZÍVE KFT.
📞 Telefon: +36 20 957 5288
✉️ E-mail: info@gaiaszive.hu
A terv megvásárlása előtt kérjük, egyeztessen a helyi építésügyi hatósággal az építési szabályokról a tulajdonában lévő, vagy a kiszemelt telek beépítési adottságait illetően.
A helyi építési szabályzat az építési törvényben meghatározottaknak megfelelően a település sajátosságait figyelembe véve határozza meg az építés helyi rendjét, a telkekre vonatkozó helyi építési követelményeket, jogokat, kötelezettségeket.
Az építési törvény építésjogi követelményeinek értelmében építési munkát végezni csak a helyi építési szabályzat és szabályozási terv előírásainak megfelelően lehet, így tehát igen fontos, hogy abban az egyes övezetekre vonatkozóan milyen előírásokat határoznak meg.
Kérjük, az építésügyi hatóságtól kapott információkat írásban kérje ki, szükség lesz rá a tervezéshez!
Két lehetőség áll fenn, mikor ez a kérdés megfogalmazódik bennünk.
Az egyik lehetőség az, amikor meglévő telekre szeretnénk építkezni. Ebben az esetben a telek adottságaihoz kell igazítanunk a terv kiválasztását. Ilyenkor az épület magassága mellett a hosszát, szélességét és tájolását is figyelnünk kell.
A másik lehetőség, amikor még nincs telkünk és lehetőségünk van a telket a ház adottságaihoz mérten kiválasztani. Ilyenkor könnyebb dolgunk van, csak a saját igényeinknek kell megfelelni a kiválasztott tervnek.
Mindkét esetben fel kell keresnünk a helyi építési hatóságot, mielőtt a kiválasztott tervet megvásároljuk!
A beépítést szabályozó paramétereket családi ház esetében a jogszabályok által előírtak szerint kell figyelembe venni.
A települések helyi építési szabályzat ("HÉSZ") nevű rendeletben rögzítik többek között a település építési övezeteit és az övezetekben található telkek beépítésének egyes szabályait.
A HÉSZ- ek szabályozzák: