![]() | Bejelentkezés |





Két lehetőség áll fenn, mikor ez a kérdés megfogalmazódik bennünk.


Van kérdése?
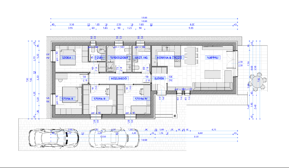
101 m²-es otthon – Tágas, kényelmes, szerethető
Ez az otthon azoknak született, akik a kényelmet, az átgondolt tereket és a természetes fényt helyezik előtérbe. A 101 m²-es házunk elérhető tégla vagy könnyűszerkezetes kivitelben, így mindenki megtalálhatja a számára tökéletes megoldást.
A ház központi helyisége egy tágas, egybenyitott nappali–étkező–konyha, amely a családi élet fő tere. A széles teraszajtón át bőségesen áramlik be a természetes fény, és közvetlen kapcsolat nyílik a teraszra — tökéletes helyszíne a reggeli kávézásnak vagy a baráti összejöveteleknek.
Az házban négy kényelmes szoba kapott helyet. Az egyikhez különálló, saját zuhanyzós fürdő is tartozik — ideális szülői-, vendég-, dolgozó-, vagy akár tiniszobának is. A házban ezen felül egy nagy méretű, világos fürdőszoba, valamint egy praktikus háztartási helyiség is megtalálható.
Az előszobából egy kényelmes közlekedőfolyosó vezet a szobákhoz, amely átgondolt elrendezésével biztosítja a privát terek és a közös helyiségek harmonikus egyensúlyát.
Ez az otthon igazi nagycsaládos álom: tágas, világos, praktikus, mégis meghitt.
A terv megvásárlása előtt kérjük, egyeztessen a helyi építésügyi hatósággal az építési szabályokról a tulajdonában lévő, vagy a kiszemelt telek beépítési adottságait illetően.
A helyi építési szabályzat az építési törvényben meghatározottaknak megfelelően a település sajátosságait figyelembe véve határozza meg az építés helyi rendjét, a telkekre vonatkozó helyi építési követelményeket, jogokat, kötelezettségeket.
Az építési törvény építésjogi követelményeinek értelmében építési munkát végezni csak a helyi építési szabályzat és szabályozási terv előírásainak megfelelően lehet, így tehát igen fontos, hogy abban az egyes övezetekre vonatkozóan milyen előírásokat határoznak meg.
Kérjük, az építésügyi hatóságtól kapott információkat írásban kérje ki, szükség lesz rá a tervezéshez!
Két lehetőség áll fenn, mikor ez a kérdés megfogalmazódik bennünk.
Az egyik lehetőség az, amikor meglévő telekre szeretnénk építkezni. Ebben az esetben a telek adottságaihoz kell igazítanunk a terv kiválasztását. Ilyenkor az épület magassága mellett a hosszát, szélességét és tájolását is figyelnünk kell.
A másik lehetőség, amikor még nincs telkünk és lehetőségünk van a telket a ház adottságaihoz mérten kiválasztani. Ilyenkor könnyebb dolgunk van, csak a saját igényeinknek kell megfelelni a kiválasztott tervnek.
Mindkét esetben fel kell keresnünk a helyi építési hatóságot, mielőtt a kiválasztott tervet megvásároljuk!
A beépítést szabályozó paramétereket családi ház esetében a jogszabályok által előírtak szerint kell figyelembe venni.
A települések helyi építési szabályzat ("HÉSZ") nevű rendeletben rögzítik többek között a település építési övezeteit és az övezetekben található telkek beépítésének egyes szabályait.
A HÉSZ- ek szabályozzák: