![]() | Bejelentkezés |





















L-002754 Belváros közelében igényes környezetben új építésű 14 lakásos társasházban penthouse lakás eladó. A lakáshoz zárt udvaron vásárolható beálló.
A vásárláshoz CSOK + igényelhető!!!
A ház kiváló elhelyezkedésének köszönhetően a történelmi belváros csupán néhány perc sétára található, mindemellett az elkerülőút közelsége miatt a város többi része is könnyen megközelíthető.
Az ingatlan környezetében bevásárlási lehetőség és számos szolgáltatás megtalálható.
Az élhető méretű és alaprajzú lakástípusok között a CSOK nyújtotta lehetőségeket kihasználni szándékozó családosok, illetve befektetési célból vásárlók is megtalálhatják a számukra megfelelő lakásukat.
A lakások a mai kor műszaki követelményeinek maximálisan eleget téve, modern szigeteléssel, elektromos, valamint hagyományos redőny előkészítéssel, 3 rétegű ablakokkal, korszerű fűtési rendszerrel és klíma előkészítéssel kerülnek átadásra.
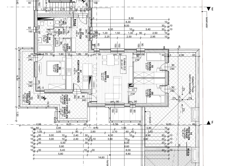
2/2 lakás: 83,8 m2|Fedett Terasz 4,81 m2| Fedetlen Terasz 54,57 m2|Elosztása:
3 hálószoba + nappali + étkező, fürdő + wc, külön wc, gardrób
Parkolás: Zárt udvaron beálló vásárolható.
Eladási ár: 119,9 M Ft
Az ingatlan elhelyezkedése, valamint, a környék infrastruktúrája miatt befektetésnek is kiváló.
Ha felkeltette érdeklődését, hívja irodánkat bizalommal, éljen ingyenes, személyre szabott hitelügyintézés szolgáltatásunkkal. Segítünk továbbá adásvételhez szükséges ügyvédi közreműködésben, energetikai tanúsítvány, valamint értékbecslés elkészítésében.
For English details please send us a message or an e-mail, thank you ...TOVÁBBI, TÖBBEZRES INGATLAN KÍNÁLAT: www.gdn-ingatlan.hu - GDN azonosító: 364080
Email cím:
Telefon: