![]() | Bejelentkezés |





















Eladó belső kétszintes lakás Budaörsön!
Várható befejezés: 2023.12.
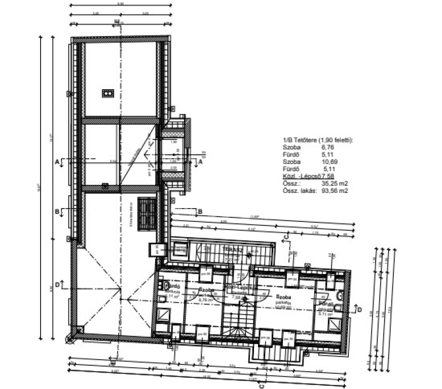
- Amerikai konyhás nappali + 3 szoba és 2 félszoba ( 160 m2)
- Dupla komfort + külön WC
- Terasz (7 m2)
- Klíma ( hűtő-fűtő)
- Padlófűtés
- Felszíni autóbeálló
- Korszerű műanyag nyílászárók
- Szigetelés
- Kertkapcsolat
Jelen készültségi szint lehetővé teszi az új tulajdonosok elképzeléseinek megvalósítását.
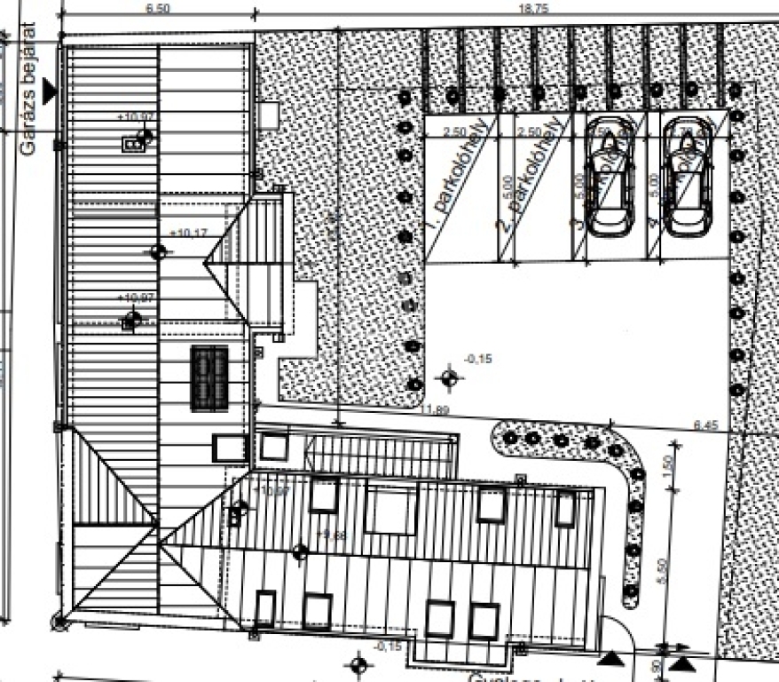
Parkolás: felszíni beálló
Közelben: TESCO, MEDIA MARKT, AUCHAN, IKEA, MÖMAX, XXXLUTZ, DIEGO, SALUS GYÓGYPONT, BUDAÖRSI HALPIAC....
Egyéb bevásárlási lehetőségek, óvoda, iskola, bankok, posta, gyógyszertár stb.
Közlekedés: kiváló ( Buszok: 40E, 172, 173, 288, 731, 732, 734, 735, 736, 760, 762, Éjszakai: 940)
Az M1 és M7 autópálya pár perc távolságra található.
Kelenföld vasútállomás autóbusszal 2 megálló.
A hirdetésben feltüntetett adatok és információk csak tájékoztató jellegűek, jogi kötelezettséggel nem bíró jognyilatkozatnak minősülnek, mely nem tekinthető ajánlat tételnek és nem járnak az eladóra nézve kötelező ajánlati kötöttséggel.
Ügyfeleink részére BANKFÜGGETLEN hitelügyintéző kollegáink szívesen nyújtanak segítséget, hitellel vagy akár CSOK-kal kapcsolatban is!
Amennyiben felkeltettem az érdeklődését vagy bármely további kérdése lenne, keressen bizalommal.
Akár hétvégén is!
CSA ...TOVÁBBI, TÖBBEZRES INGATLAN KÍNÁLAT: www.gdn-ingatlan.hu - GDN azonosító: 354200
Email cím:
Telefon: