![]() | Bejelentkezés |









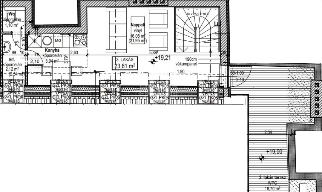
Körúton belül, a belváros egyik központi részén, az Oktogon, és a Nyugati pályaudvar között, épül a főváros egyik exkluzív fejlesztése! Összesen 12 db új építésű lakás! A lakások egyedisége egyrészt a régi idők és a modern kor ötvözetében rejlik. Egy klasszikus épület, melynek teljes körű felújítása során, a legfelső szinten 12 modern, tetőteraszos okos otthon kerül kialakításra. Burkolatot, szanitereket, beltéri ajtók a mintakollekcióból a vevő kiválaszthatja! Az ingatlan fűtése rendkívül energiatakarékos, hőszivattyús rendszerrel lesz kiépítve, a hő leadás a padló illetve mennyezetfűtésen keresztül történik. A beépített konyhabútort kivéve az ÁR MINDENT TARTALMAZ! Az ingatlanok átadása: 2026. 2.negyedév Fizetési ütemezés: 25% Előszerződéskor 25% Szerkezetkész állapot 25% Nyílászárók beépítése, szigetelés megtörtént 25% Használatbavételi engedély Ha valaki hitelből vásárolna, arra is van lehetőség,
3 as lakás ...TOVÁBBI, TÖBBEZRES INGATLAN KÍNÁLAT: www.gdn-ingatlan.hu - GDN azonosító: 337797
Email cím:
Telefon: