![]() | Bejelentkezés |





















Panoráma Diósd csúcsán!
Kivételes környezetben kínálunk egy 2 + tetőteraszos (ennek egy része zöld terasz) családi házat.
A bruttó 277 nm-es (garázzsal együtt) ingatlan építési munkálatai 2022-ben kezdődtek, melynek készültségi szintje jelenleg 50%-os.
Az időközben történt munkálatok miatt változások:
- magasabb nyílászáró nyílások kialakítása (ha netán a vevő más redőnytokot, vagy a szabványtól eltérő beltéri ajtókat kívánna beépíteni)
- tetőterasznál plusz WC helyiség kialakítás,
- telken plusz garázsépítési lehetőség.
A tervezett fűtés hószivattyús rendszerrel és padlófűtéses technológiával kerül kivitelezésre.
Ingatlan jellemzői:
- telek méret 558 nm (összközműves)
- 2 beállásos garázs,
- tárolók a garázs szinten,
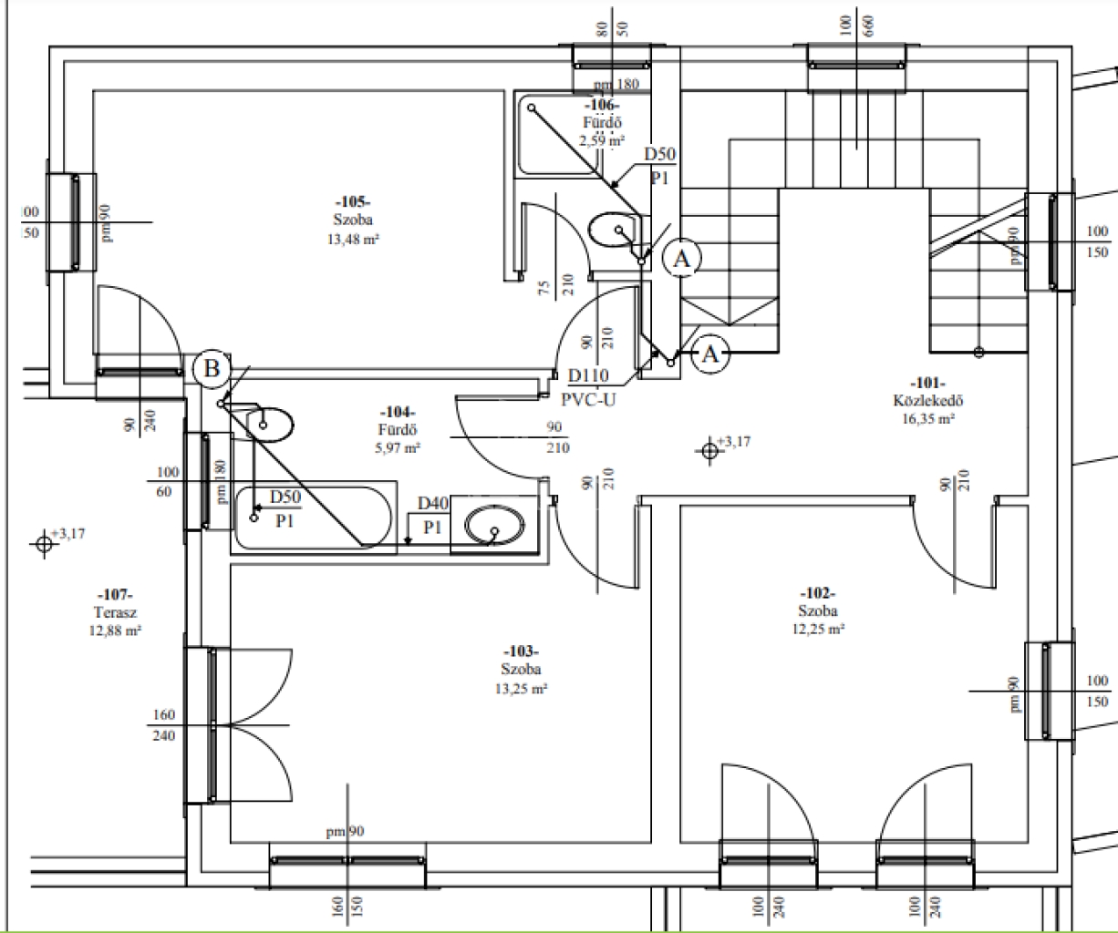
- földszint: nappali, szoba, konyha-étkező, közlekedő, gardrób, előtér, terasz,
- emelet: 3 szoba, közlekedő,
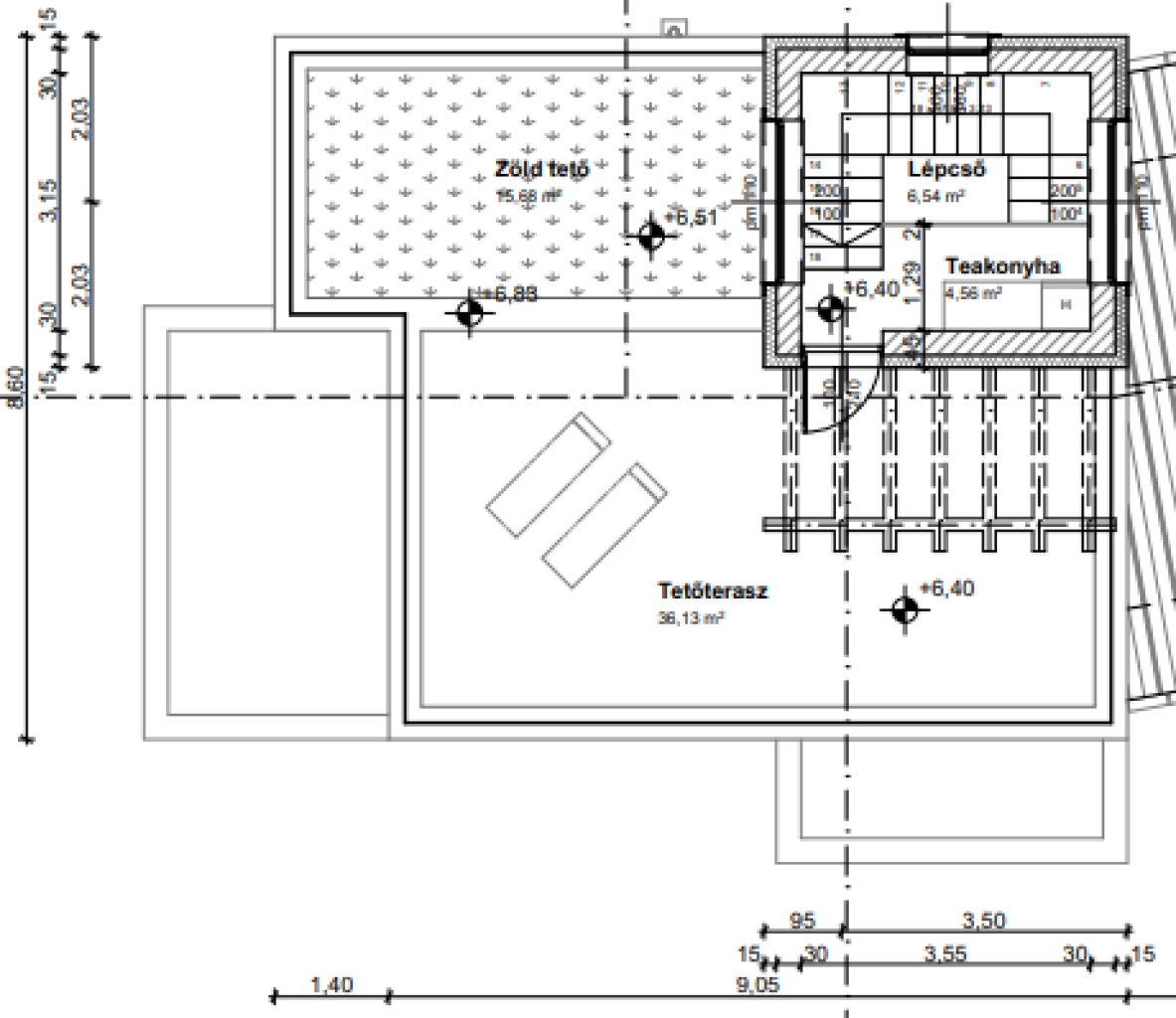
- tetőszint: teakonyha, zöld tető, tetőterasz.
Egyéb jellemzők:
- övezet: Lke-4,
- maximális beépítés: 30%,
- tervezett beépítés: 145,14m2 (26,01%)
- minimális zöldterület: 50%,
- tervezett zöldterület: 288,08m2 (51,63%),
- maximális épületmagasság: 5,5m,
- tervezett épületmagasság: 5,49m. ...TOVÁBBI, TÖBBEZRES INGATLAN KÍNÁLAT: www.gdn-ingatlan.hu - GDN azonosító: 383955
Név:
Email cím:
Telefon: