![]() | Bejelentkezés |





















Úrhidán eladásra kínálunk egy nettó 91 nm-es új építésű családi házat.
Az ingatlan ára: 79.000.000 Ft
MŰSZAKI TARTALOM:
Fűtés:
- hőszivattyús rendszer, klíma
- OPCIÓ: 5.0 KW napelemrendszer, kandalló vagy cserépkályha, kémény kialakítás
Falazatok:
- A falazatok egységesen Porotherm rendszerből készülnek,
külső térelhatároló falak 30 cm POROTHERM téglából készülnek.
A belső válaszfalak 10 cm-es Porotherm vagy 10 vtg. Ytong
Burkolat:
- A szobákban laminált parketta, a hidegburkolat konyhában kerámia burkolat bruttó 4.000 Ft/m²-es árban, mely a kiegészítőket is tartalmazza.
- A fürdőszoba és a WC 170 cm-ig csempézve bruttó 4.000Ft/m²-es árban, mely a kiegészítőket is tartalmazza. Az ár hagyományos hálós lerakást tartalmaz. Amennyiben mintákat, díszítő elemeket kell beépíteni, annak költségét külön kell egyeztetni.
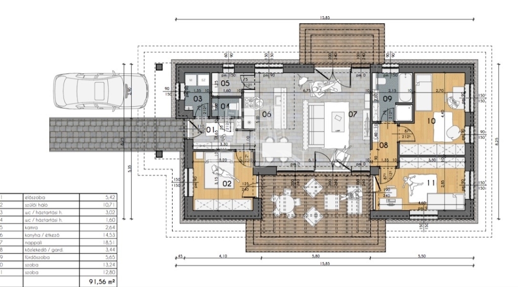
HÁZ BEOSZTÁSA:
Földszint:
- előszoba: 5 nm
- kamra: 3 nm
- nappali: 19 nm
- konyha/étkező: 15 nm
- fürdő: 6 nm
- wc: 2 nm
- szülői háló: 11 nm
- szoba: 13 nm
- szoba: 13 nm
- háztartási helyiség: 3 nm
- közlekedő: 3 nm
- terasz: 20 nm
Birtokbaadás: 12 hónap!
AZ ADATOK TÁJÉKOZTATÓ JELLEGŰEK!
Amivel segítjük az Ön ingatlan vásárlását:
- ingyenes hitelügyintézés (CSOK és Babaváró és egyéb hitel ügyintézése is)
- jogi háttér,
- földhivatali ügyintézés,
- energetikai tanúsítvány ügyintézése,
- a vevő számára ingyenes az ingatlanközvetítés. ...TOVÁBBI, TÖBBEZRES INGATLAN KÍNÁLAT: www.gdn-ingatlan.hu - GDN azonosító: 382867
Név:
Email cím:
Telefon: