![]() | Bejelentkezés |





















Dunaharasztin a Tópark Lakóparkban eladásra kínáljuk a hirdetésben szereplő új építésű ikerház felet!
105 nm + 21 nm terasz + 42 nm kocsibeálló + 476 nm-es telken = 135.000.000 Ft
A lakás külön helyrajzi számmal és külön mérőórákkal rendelkezik. A telekhatáron kerítés választja el egymástól az ikerház feleket.
Műszaki tartalom:
- külső főfalak 30 cm vastag égetett vázkerámia tégla,
- 15 cm hőszigetelés,
- Nyílászárók: 3 rétegű műanyag,
- Hőszivattyús rendszer biztosítja a ház fűtését-hűtését,
- padlófűtés + Fan-coil
Az árban:
- robot fűnyíró, ,
- kamera rendszer,
- elektromos redőny, szúnyogháló minden ablakon,
- függöny karnissal,
- nappali szekrény világítással fali panellal,
- konyhabútor
- beépített hűtő fagyasztóval,
- főző lap,
- előszoba bútor,
- fürdőszoba tükör világítással,
- riasztó rendszer, ajtónyitókkal bővíthető (a vezetek ott van)
- füvesített kert öntözőrendszerrel,
- elektromos kapu,
- 2 autóbeállós garázs elektromos ajtóval.
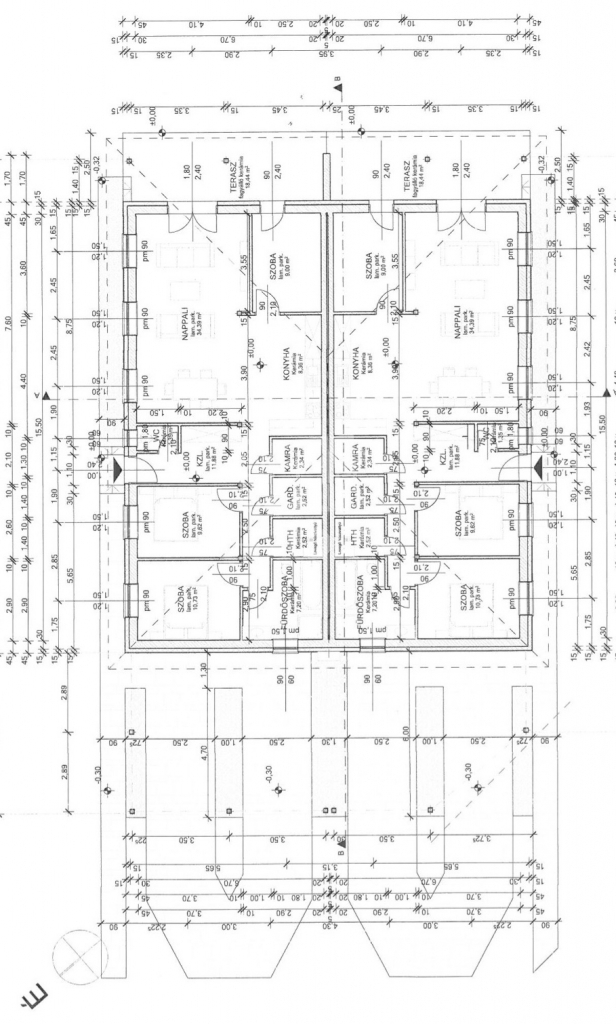
1. LAKÁS BEOSZTÁSA:
Földszint:
- konyha: 8 nm
- nappali + étkező: 34 nm
- fürdő: 7 nm
- wc: 2 nm
- szoba: 9 nm
- szoba: 10 nm
- szoba: 11 nm
- közlekedő: 12 nm
- h.t.h.: 3 nm
- gardrób: 3 nm
- kamra: 2 nm
- terasz: 21 nm
A lakópark 38 hektáron épül egy tó köré,
- étteremmel,
- wakeboard pályával,
- homokos stranddal,
- napozó szigettel,
- kivilágított futópályával,
- saját portaszolgálattal,
- horgászási lehetőséggel,
- privát sportközponttal
(kondipark, tenisz-, lábtenisz-, grundfoci-pálya),
- játszótérrel
- és kutyafuttatóval.
A lakóparktól 3 perces távolságban TESCO, ALDI, LIDL, KFC található.
Dunaharasztiból az M0-ás autóút pár perc alatt megközelíthető,
a főváros kb.10 km-es távolságban van.
AZ ADATOK TÁJÉKOZTATÓ JELLEGŰEK!
Irodánk 27 éves szakmai tapasztalattal áll ügyfelei rendelkezésére!
Várom szíves megkeresését. ...TOVÁBBI, TÖBBEZRES INGATLAN KÍNÁLAT: www.gdn-ingatlan.hu - GDN azonosító: 382735
Név:
Email cím:
Telefon: