![]() | Bejelentkezés |













Eladásra kínáljuk Budapest, XXII. kerületében, egy Nagytétényben épülő, 2 lakásos, kétszintes ikerház mindkét lakását. (A lakások hasonló alapterületűek, kerthasználattal kerülnek kialalakításra).
Az ikerház kertvárosias környezetben helyezkedik el, lakásonként bruttó 102 m2 alapterülettel, utcafronttól beljebb kerülnek megépítésre.
Lakásonként nappali+4 szoba lesz kialakítva, fürdőszoba mindkét szinten megtalálható.
A lakások fűtése és melegvíz ellátása hőszivattyúval fog történni, ezzel a fenntartási költség kiváló és környezetbarát is.
A ház modern kialakítása és magas műszaki tartalma minden igényt kielégít.
Helyiség kimutatás:
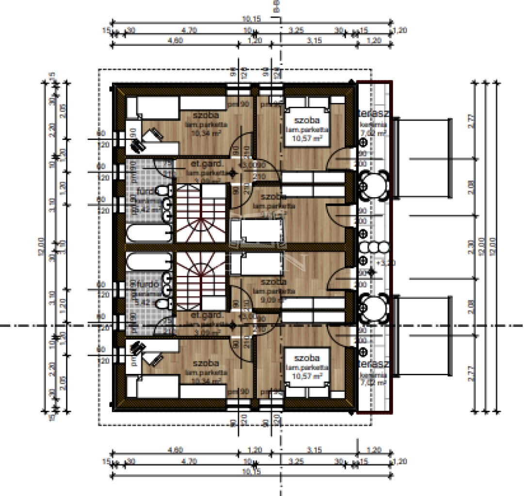
1.sz.lakás
Földszint
Előszoba kerámia 4,94 m2
Nappali-étkező lam.padló 25,17 m2
Konyha kerámia 4,60 m2
Házt.h. kerámia 3,10 m2
Szoba lam.padló 8,14 m2
Tetőtér
Et.gard. lam.padló 3,09 m2
Fürdő kerámia 5,42 m2
Szoba lam.padló 10,34 m2
Szoba lam.padló 10,57 m2
Szoba lam.padló 9,09 m2
Összesen: 84,45 m2+teraszok
2.sz.lakás
Földszint
Előszoba kerámia 4,94 m2
Nappali-étkező lam.padló 25,17 m2
Konyha kerámia 4,60 m2
Házt.h. kerámia 3,10 m2
Szoba lam.padló 8,14 m2
Tetőtér
Et.gard. lam.padló 3,09 m2
Fürdő kerámia 5,42 m2
Szoba lam.padló 10,34 m2
Szoba lam.padló 10,57 m2
Szoba lam.padló 9,09 m2
Összesen: 84,45 m2+teraszok
Érdeklődés esetén a műszaki- és egyéb leírásokat rendelkezésre tudjuk bocsátani!
Foglalja le most, fizesse ki később!
Élvezze a nyugalom és a kényelem tökéletes kombinációját ebben az elegáns otthonban.
Tökéletes választás lehet azok számára, akik egy új, karbantartás mentes otthonra vágynak.
Várható átadás: 2025. év vége
INGYENES hitel tanácsadás, CSOK Plusz ügyintézés!
BANKFÜGGETLEN hitelcentrumunk az összes elérhető bank és hitelintézet ajánlatát versenyezteti az Ön kedvéért, ráadásul DÍJMENTESEN.
- Egyedi, bankfiókban nem elérhető kamat- és díjkedvezmények
- Hitelképesség vizsgálat
- Idő, energia és pénz megtakarítás
- Teljes hivatali ügyintézés
Amennyiben hirdetésem felkeltette az érdeklődését vagy egyéb információra van szüksége hívjon bizalommal! ...TOVÁBBI, TÖBBEZRES INGATLAN KÍNÁLAT: www.gdn-ingatlan.hu - GDN azonosító: 382249
Név:
Email cím:
Telefon: