![]() | Bejelentkezés |








Ha pénztárcabarát otthont keres és nem tud vagy nem akar albérletet fizetni. Az elszabadult ingatlanárak mellett egy tökéletes befektetés lehet a Gaia Mobilotthon.

Ha teljesen egyedi kialakítású hétvégi házat keres, kemping vagy panzió helyett válassza a Gaia Mobilotthont.

Ha befektetni szeretne. Rendelkezik egy csodaszép telekkel? A Gaia Mobilotthon egy modern, kiadható apartmanként is funkcionál.
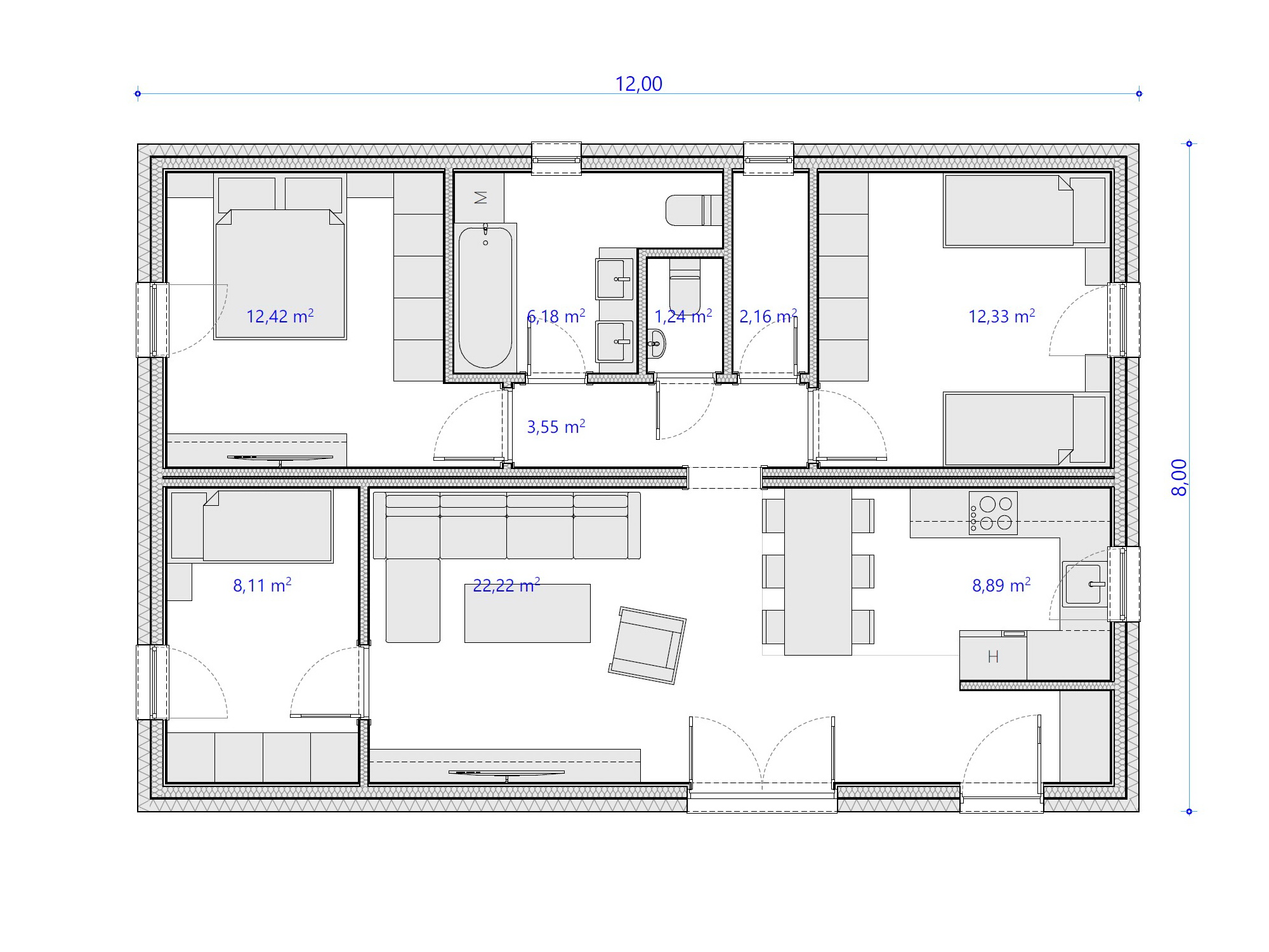
Prémium Kétmodulos Családi Ház (77,10 m²) – Tágas Otthon 3 Hálószobával Nagycsaládosoknak
Fedezze fel legnépszerűbb családi modellünket, amelyet kifejezetten 2-3 gyermekes családok tágas igényeire terveztünk. Ez a modern, rendkívül praktikus elrendezésű ház a tökéletes választás, ha egy gyorsan beköltözhető, értékálló és alacsony fenntartású családi fészket keres.
A Gaia Szíve Kft. innovatív technológiájának köszönhetően az építkezés nem egy hónapokig tartó, zajos folyamat. Kecskeméten és a város 40 km-es vonzáskörzetében helyszíni építéssel vállaljuk, ennél távolabb eső település esetén az Ön új otthona a telephelyünkön, ellenőrzött körülmények között készül el, és szinte "csomagként" érkezik a telekre, minimálisra csökkentve a helyszíni munkát és a felfordulást.
(Utóbbi esetben az alapozást a Gaia Szíve instrukciói alapján kérjük elvégezni.)
A Tágas Családi Otthon Előnyei
Ez a modell minden négyzetméterén a kényelmet és a funkcionalitást szolgálja, hogy a család minden tagja megtalálja a saját, nyugodt életterét.
✔ Nagyvonalú, Élhető Terek: A több mint 80 m²-en kényelmesen elfér egy világos, amerikai konyhás nappali a közös időtöltéshez, és három, teljes értékű, külön nyíló hálószoba a privát szféra biztosítására.
✔ Gyors és Tiszta Kivitelezés: Felejtse el a hosszadalmas és kiszámíthatatlan építkezést! Az előregyártásnak köszönhetően a költözés dátuma pontosan tervezhető.
✔ Időtálló, Négy Évszakos Komfort: A masszív szerkezet és a korszerű szigetelés garantálja a minimális rezsiköltséget és a kellemes lakóklímát télen-nyáron.
✔ Személyre Szabható Megjelenés: Az alap, modern lapostetős kivitel mellett +1 millió Ft felárért klasszikus sátortetővel is kérheti, hogy otthona tökéletesen illeszkedjen az Ön ízléséhez és a környezetbe.
Prémium Műszaki Tartalom
Alapozás és Szerkezet: Sávalap, minimum 8 cm vastag szerelőbetonnal és talajpára elleni szigeteléssel. A falak könnyűszerkezetesek (A-60/2021 NMÉ szerint tanúsítva).
Szigetelés és Homlokzat: A falakban 15 cm vastag EPS szigetelés, a födémben 25 cm vastag fagyapot szigetelés biztosítja a komfortot. A homlokzat 1,5 mm-es kapart nemesvakolatot kap.
Tetőfedés: Terrán Renova beton cserépfedés, választhatóan téglavörös vagy antracit színben.
Nyílászárók: Fokozottan hőszigetelt, 6 légkamrás, 3 rétegű üvegezésű, acélbetétes műanyag nyílászárók. A bejárati ajtó 36 mm vastag, praktikus felülvilágítóval.
Fűtés és Hűtés: Modern levegő-levegő hőszivattyú gondoskodik a fűtésről, helyiségenkénti mennyezeti légkezelőkkel.
Gépészet és Villanyszerelés: A melegvizet Ariston Velis Pro EU100 elektromos bojler szolgáltatja. A villamos hálózat rézvezetékekkel és Schneider Asfora szerelvényekkel készül (az ár 40 db szerelvényt és helyiségenként 1 db lámpakiállást tartalmaz).
Árazás és Választható Szolgáltatások
Az otthon alapárát és a részletes műszaki tartalmat személyre szabott árajánlatban biztosítjuk Önnek.
Kérjen tőlünk ajánlatot, hogy megismerje az Ön igényeire szabott, kedvező árat!
Felár ellenében elérhető szolgáltatásaink:
Ház körüli járda kialakítása
Teljes körű telek-tereprendezés
Egyedi konyhabútor tervezése, gyártása és beszerelése
Állami Támogatások és Pénzügyek
Új otthona megvalósításához most kedvező lehetőségeket is igénybe vehet! Ez a modell méretével és kialakításával ideális alapja lehet a jelenleg is elérhető állami támogatásoknak.
CSOK Plusz: Tájékozódjon a legújabb, kedvezményes hitelkonstrukcióról, melyet új otthon építésére igényelhetnek a gyermekes vagy gyermeket vállaló családok.
5%-os ÁFA: Amennyiben az építkezés egyszerű bejelentéssel történik, új építésű ingatlanként a törvényi előírásoknak megfelelően a kedvezményes, 5%-os ÁFA tartalommal számolhat.
Opcionálisan rendelhető:
Terasz: Bővítse ki a tágas nappalit egy hangulatos terasszal, amely tökéletes helyszíne a családi étkezéseknek és a kerti pihenésnek. A terasz méretéről és áráról kérjen tőlünk részletes tájékoztatást!
*Az árak telephelyi átvételre vonatkoznak. A szállítás és telepítés költségeiről kérjen egyedi ajánlatot.
Készen Áll Megvalósítani Családja Álmát?
Ne várjon tovább! Vegye fel velünk a kapcsolatot egy személyre szabott ajánlatért, és tegye meg az első lépést egy modern, kényelmes és gyorsan felépülő családi otthon felé!
Hívjon minket bizalommal!
GAIA SZÍVE KFT.
📞 Telefon: +36 20 957 5288
✉️ E-mail: info@gaiaszive.hu


Van kérdése?