![]() | Bejelentkezés |









Ha pénztárcabarát otthont keres és nem tud vagy nem akar albérletet fizetni. Az elszabadult ingatlanárak mellett egy tökéletes befektetés lehet a Gaia Mobilotthon.

Ha teljesen egyedi kialakítású hétvégi házat keres, kemping vagy panzió helyett válassza a Gaia Mobilotthont.

Ha befektetni szeretne. Rendelkezik egy csodaszép telekkel? A Gaia Mobilotthon egy modern, kiadható apartmanként is funkcionál.
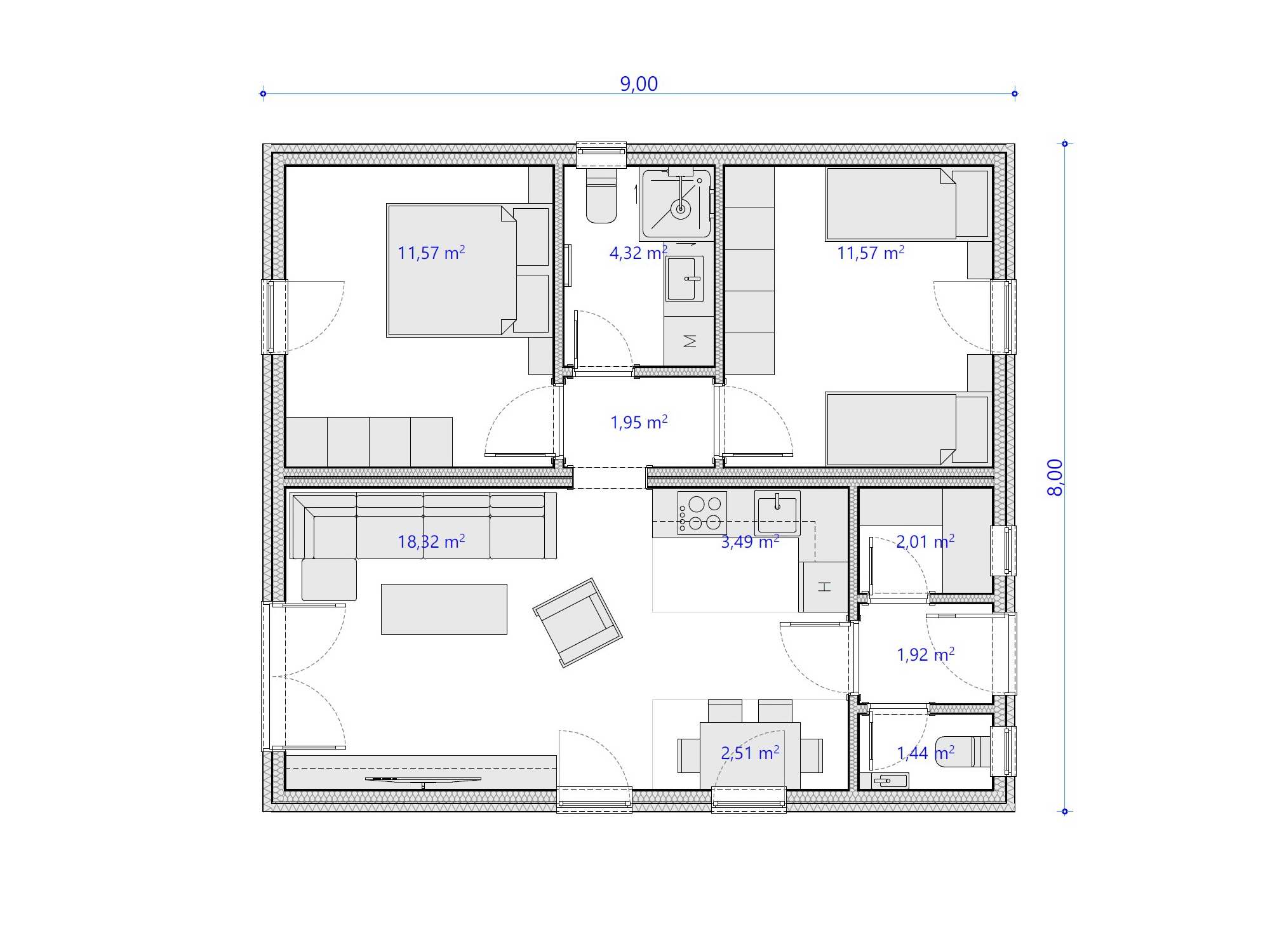
Kétmodulos Családi Ház (56,85 m²) – Praktikus Tér, Modern Otthon, Gyorsan
Fedezze fel kétmodulos családi házunkat, amely tökéletes választás kisebb családoknak, első otthonteremtőknek vagy egy minden kényelemmel felszerelt nyaralónak.
A modern, előregyártott technológiának köszönhetően az építkezés gyors, precíz és környezetbarát. Kecskeméten és 40 km-es vonzáskörzetében helyszíni építkezéssel, távolabbi településeken daruval és nyerges kamionnal oldjuk meg a szállítást minimális helyszíni munkával.
A GAIA SZÍVE KFT. által kínált modell az intelligens térkihasználás és az élhető komfort tökéletes ötvözete.
Miért Ideális Választás Ez a Modell?
Ez a 59,10 m²-es otthon mindent biztosít, amire a kényelmes mindennapokhoz szükség van, felesleges kompromisszumok nélkül.
✔ Élhető Méret, Optimális Elrendezés: A tágas, egyterű nappali-konyha-étkező a családi élet központja, míg a két külön nyíló hálószoba biztosítja a privát szférát és a nyugodt pihenést.
✔ Gyors és Tiszta Kivitelezés: A telephelyünkön történő gyártás garantálja a kiszámítható határidőket és a prémium minőséget, miközben az Ön telkén a felfordulás minimális.
✔ Teljes Értékű, Négy Évszakos Otthon: A kiváló szigetelésnek és a minőségi anyagoknak köszönhetően ez a ház egész évben kényelmes és energia hatékony otthont nyújt.
✔ Személyre Szabható Megjelenés: Az alap (lapostetős) kivitel mellett +1 millió Ft felárért modern, sátortetős változatban is kérhető, hogy otthona tökéletesen illeszkedjen az Ön stílusához.
✔ Egyszerű Adminisztráció: A ház egyszerű bejelentéssel építhető, így az engedélyeztetési folyamat gyors és gördülékeny.
Prémium Műszaki Tartalom
Alapozás és Szerkezet: Sávalap, minimum 8 cm vastag szerelőbetonnal és talajpára elleni szigeteléssel. A falak könnyűszerkezetesek (A-60/2021 NMÉ szerint tanúsítva).
Szigetelés és Homlokzat: A falakban 15 cm vastag EPS szigetelés, a födémben 25 cm vastag fagyapot szigetelés biztosítja a komfortot. A homlokzat 1,5 mm-es kapart nemesvakolatot kap.
Tetőfedés: Terrán Renova beton cserépfedés, választhatóan téglavörös vagy antracit színben.
Nyílászárók: Fokozottan hőszigetelt, 6 légkamrás, 3 rétegű üvegezésű, acélbetétes műanyag nyílászárók. A bejárati ajtó 36 mm vastag, praktikus felülvilágítóval.
Fűtés és Hűtés: Modern levegő-levegő hőszivattyú gondoskodik a fűtésről, helyiségenkénti mennyezeti légkezelőkkel.
Gépészet és Villanyszerelés: A melegvizet Ariston Velis Pro EU100 elektromos bojler szolgáltatja. A villamos hálózat rézvezetékekkel és Schneider Asfora szerelvényekkel készül (az ár 40 db szerelvényt és helyiségenként 1 db lámpakiállást tartalmaz).
Árazás és Választható Szolgáltatások
Az otthon alapárát és a részletes műszaki tartalmat személyre szabott árajánlatban biztosítjuk Önnek.
Kérjen tőlünk ajánlatot, hogy megismerje az Ön igényeire szabott, kedvező árat!
Felár ellenében elérhető szolgáltatásaink:
Ház körüli járda kialakítása
Teljes körű telek-tereprendezés
Egyedi konyhabútor tervezése, gyártása és beszerelése
A feltüntetett árak telephelyi átvételre vonatkoznak. Egyedi igényeit és a pótmunka díját minden esetben írásban, előzetesen egyeztetjük.
Tegye Meg Az Első Lépést!
Válassza a Zafír kétmodulos otthont, ami élhető méretet, gyors és tiszta kivitelezést, valamint időtálló, négy évszakos lakhatást kínál!
Kérjen személyre szabott ajánlatot, vagy hívjon minket bizalommal!
GAIA SZÍVE KFT.
📞 Telefon: +36 20 957 5288
✉️ E-mail: info@gaiaszive.hu
Árazás és Kedvezményes ÁFA
Mivel minden otthon egyedi, a pontos vételár a választott műszaki tartalomtól és felszereltségtől függ.
Kérjen személyre szabott ajánlatot, hogy megismerje az Ön igényeire szabott árat és a részletes műszaki leírást!
Fontos információ: Új építésű ingatlanként, amennyiben a telek megfelel az egyszerű bejelentés követelményeinek, az ÁFA mértéke a törvényi előírások szerint kedvezményesen, mindössze 5%.
Opcionális Bővítési Lehetőségek
Terasz:
Bővítse életterét egy hangulatos terasszal, ahol élvezheti a szabad levegőt! A terasz külön rendelhető opció.
*Az árak telephelyi átvételre vonatkoznak. A szállítás és daruzás költségéről kérjen egyedi ajánlatot.
Lépjen Velünk Kapcsolatba!
Tegye meg az első lépést egy gyorsan felépülő, modern és kényelmes otthon felé! Hívjon minket bizalommal, vagy kérjen részletes, személyre szabott árajánlatot!
GAIA SZÍVE KFT.
📞 Telefon: +36 20 957 5288
✉️ E-mail: info@gaiaszive.hu


Van kérdése?