![]() | Bejelentkezés |








Ha pénztárcabarát otthont keres és nem tud vagy nem akar albérletet fizetni. Az elszabadult ingatlanárak mellett egy tökéletes befektetés lehet a Gaia Mobilotthon.

Ha teljesen egyedi kialakítású hétvégi házat keres, kemping vagy panzió helyett válassza a Gaia Mobilotthont.

Ha befektetni szeretne. Rendelkezik egy csodaszép telekkel? A Gaia Mobilotthon egy modern, kiadható apartmanként is funkcionál.
Zafír Plusz – Tágas Kényelem, Kompromisszumok Nélkül
Bemutatjuk a Zafír házcsalád legnagyobb tagját, a Zafír Pluszt, amelyet azoknak alkottunk meg, akik egy kompakt, mégis tágas és minden igényt kielégítő, modern otthonra vágynak. Ez a modell tökéletes egyensúlyt teremt a praktikus méret és a nagyvonalú életterek között.
A közel 50 m²-es alapterületével a Zafír Plusz ideális választás családoknak, pároknak, vagy akár egy exkluzív vendégháznak is, ahol a kényelem és a funkcionalitás az első.
A Tér és a Stílus Harmóniája
A Zafír Plusz intelligens tervezésének köszönhetően a belső tér funkcionálisan tökéletesen tagolt. A világos, amerikai konyhás nappali a közösségi élet központja, míg a külön nyíló hálószoba a nyugodt pihenést szolgálja. A praktikus fürdőszoba és a tágas tárolóhelyiség mind a mindennapi komfortot emelik.
A Zafír Plusz legfőbb előnyei:
✔ Nagyvonalú Belső Terek: A közel 50 m²-en tágas nappali, kényelmes háló, étkezős konyha, fürdő és egy külön tároló is helyet kapott.
✔ Személyre Szabható Megjelenés: Válasszon 5 cm vagy 10 cm vastag külső szigetelést, és adja meg otthona egyedi karakterét a színezett nemesvakolat széles választékával.
✔ Négy Évszakos Komfort: Teljes értékű családi házként terveztük, amely a legszigorúbb energetikai követelményeknek is megfelel, így egész évben ideális.
✔ Gyors és Tiszta Kivitelezés: Az előregyártott technológia minimálisra csökkenti a helyszíni munkát, így Ön gyorsan és felesleges felfordulás nélkül költözhet.
✔ Egyszerű Bejelentéssel Építhető: A jogszabályi előírásoknak megfelelően, egyszerűsített eljárással valósíthatja meg otthonát.
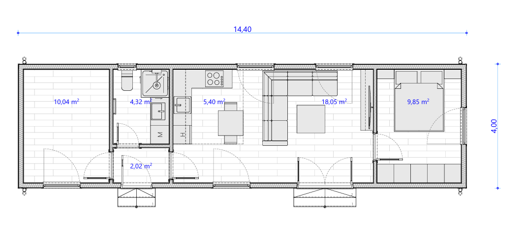
Helyiségek és Alapterület
Hasznos alapterület összesen: 49,68 m²
Nappali: 18,05 m²
Konyha & Étkező: 5,40 m²
Előtér: 2,02 m²
Fürdőszoba: 4,32 m²
Tároló: 10,04 m²
Hálószoba: 9,85 m²
Árak és További Információk
Zafír Plusz alapár (alap műszaki tartalommal):
19.900.000 Ft + ÁFA
Fontos tudnivaló: Új építésű ingatlanként, amennyiben a telek megfelel az egyszerű bejelentés követelményeinek, az ÁFA mértéke kedvezményesen, mindössze 5%.
Opcionálisan rendelhető terasz:
Bővítse ki életterét egy hangulatos terasszal!
Ár: 130.000 Ft/m² + 27% ÁFA
*Az árak telephelyi átvételre vonatkoznak.
Kérjen Személyre Szabott Ajánlatot!
Érdekli a Zafír Plusz modell, és szeretne többet megtudni? Vegye fel velünk a kapcsolatot még ma egyedi árajánlatért és a további részletekért!
GAIA SZÍVE KFT.
📞 Telefon: +36 20 957 5288
✉️ E-mail: info@gaiaszive.hu


Van kérdése?